827 S. 4th St., Apt #9, Lafayette, IN 47905
827 S. 4th St., Apt #9, Lafayette, IN 47905
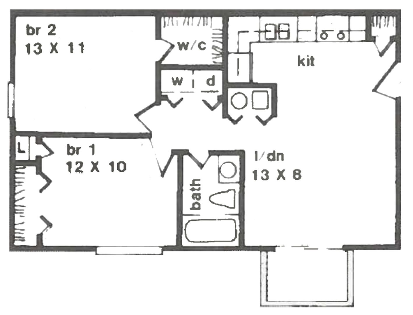
2 Bedroom 1 Bath Apartment
Lovely 1 & 2 bedroom apartment homes featuring fully equipped kitchens and walk-in closets. Located south of downtown Lafayette, we’re walking distance to Miller Elementary and close to Purdue University. Contact us today to schedule a tour!
 Contact us:
 































